![]() |
|
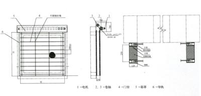
详细信息
适用于不设自动喷淋系统的场合,节能,节省投资
无机特级防火卷帘,具有重量轻、减轻对建筑结构的负载;隔热性能好,价格低等优点。具有广阔的发展前景。
技术参数:
1、背火面平均温升≤140℃,单点最高温升≤180℃,耐火极限:≥3.0h;
2、启闭速度:2-9m/min;
3、漏烟量不大于0.2m3/m2min;

产品中心Product联系我们Contact Us电话:15216695821 联系人: 范经理 邮箱:wenandq@126.com 厂址: 上海市嘉定区浏翔公路6969号 |
详细信息
适用于不设自动喷淋系统的场合,节能,节省投资
3、漏烟量不大于0.2m3/m2min;
更多
相关产品 |